Como en situaciones donde se ha utilizado, aserrín para dar más decida a lodos de perforación y evitar perdidas por la inconsistencia del terreno y permita dar estabilidad para la ejecución de terrenos espéciales.

Dando estos casos de imperfecciones de ejecución de pilas coladas en situ

Dándose casos mencionados en figura anterior y para garantizar la correcta ejecución de perforación introducción y colado en las cimentaciones requeridas en suelos especiales de requerir en situaciones como es suelos no cohesivos, granulares, arcillosos, con saturación de nivel freático, cavernosos, cálcicos y todo aquel donde la incertidumbre no sea despejada por mecánica de suelos

Dándose estos casos se ha utilizado los ademes recuperables, que, al ser recuperados en el momento anterior al fraguado de concreto, generan caídos y afectaciones a la consistencia del concreto que se a dictado en pruebas Cross hollé y PIT y TIP,

No se infiere que sea una mala práctica, solo que solo es para terreno donde se permita esta practica.


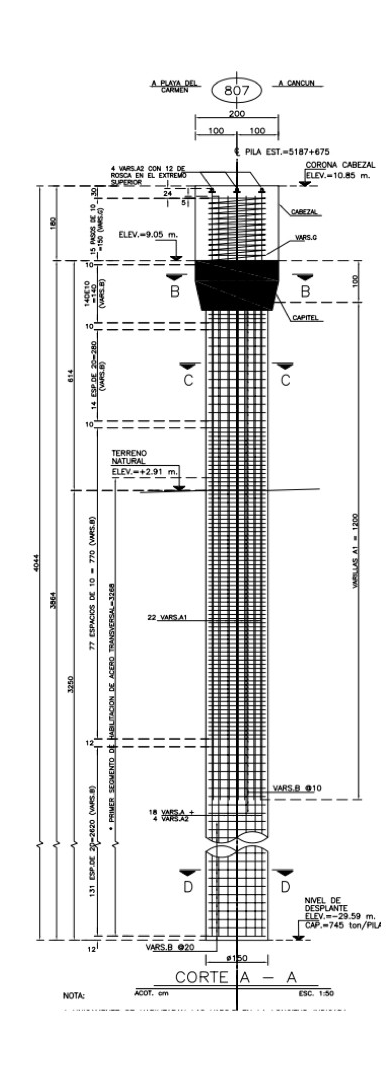
Sección circular de pila solicitada en proyecto, con fines estructurales a ejecutar en terreno, cálcico en península de Yucatán, México  

De forma congruente y objetiva se deben de considerar las holguras entre los elementos y el terreno natural, para su correcta ejecución, considerando que es un elemento con confinado dentro de perforación del terreno, se desprecia su capacidad de contención, por su ligereza y ya que se utilidad se limita a contener el concreto durante su fraguado inicial.

Por lo tanto, se recomendó la utilización de ademes perdidos de lámina galvanizada, espiro ducto para garantizar sección, la no perdida de concreto, no contaminación de la pila, no contaminación de aguas freáticas.


PERFORACIÓN